Προς Πώληση – Ισόγειο Διαμέρισμα στο Κέντρο Θεσσαλονίκης | Επενδυτική Ευκαιρία
Διατίθεται προς πώληση ισόγειο διαμέρισμα στο κέντρο της Θεσσαλονίκης, σε καλή και ήσυχη γειτονιά, ιδανικό για εκμετάλλευση και επένδυση.
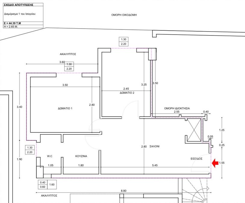
Το ακίνητο έχει συνολική επιφάνεια 53 τ.μ. μικτά (44 τ.μ. καθαρά) και βρίσκεται σε οικοδομή παλαιότερης κατασκευής. Χρήζει ριζικής ανακαίνισης, γεγονός που δίνει τη δυνατότητα πλήρους διαμόρφωσης σύμφωνα με τις ανάγκες του νέου ιδιοκτήτη.
Αποτελείται από:
• 2 υπνοδωμάτια
• σαλοκουζίνα
• 1 μπάνιο
Διαθέτει οπίσθιο άνοιγμα με ιδιωτική αυλή, στοιχείο σπάνιο για ακίνητα κέντρου και ιδιαίτερα ελκυστικό για μελλοντική μίσθωση.
Στις φωτογραφίες περιλαμβάνεται και η κάτοψη του ακινήτου για καλύτερη κατανόηση της διαρρύθμισης των χώρων.
👉 Ιδανική επιλογή για:
• φοιτητική κατοικία
• βραχυχρόνια μίσθωση
• μακροχρόνια εκμετάλλευση
Εξαιρετική επενδυτική ευκαιρία στο κέντρο της Θεσσαλονίκης με προοπτική σταθερού εισοδήματος από ενοίκια.
Για περισσότερες πληροφορίες ή ραντεβού επίδειξης επικοινωνήστε με το μεσιτικό γραφείο μας.




















